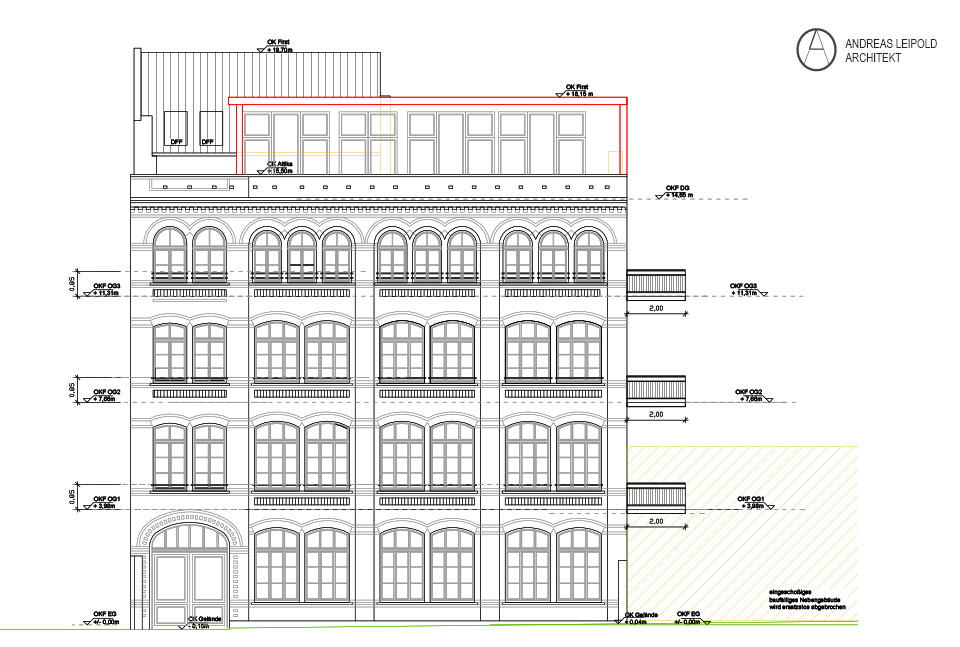
Ein ungenutztes kleines Fabrikgebäude in mitten einer gestalteten Grünfläche in einem vorhandenen Wohnquartier wurde für eine Wohnnutzung umkonzeptioniert und mit
Ein ungenutztes kleines Fabrikgebäude in mitten einer gestalteten Grünfläche in einem vorhandenen Wohnquartier wurde für eine Wohnnutzung umkonzeptioniert und mit