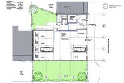
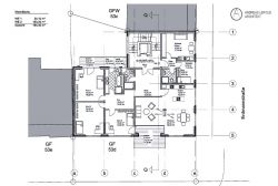
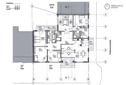
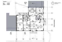
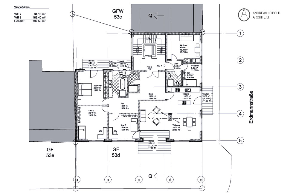
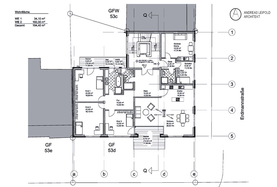
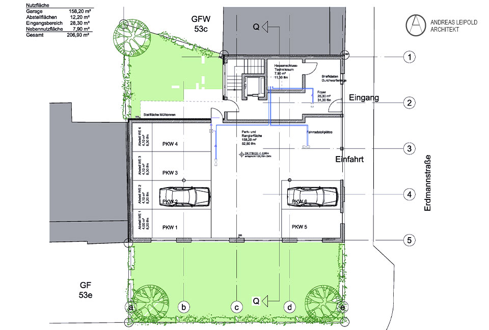
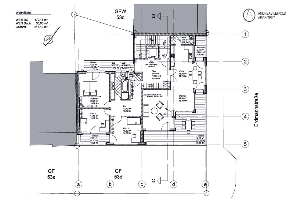
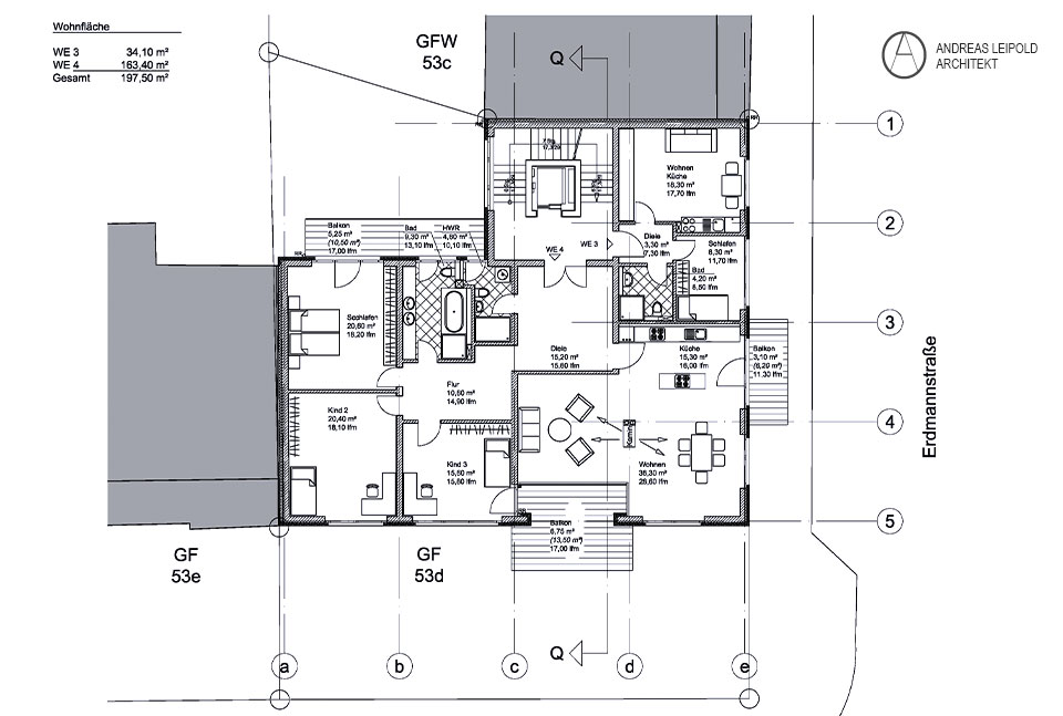
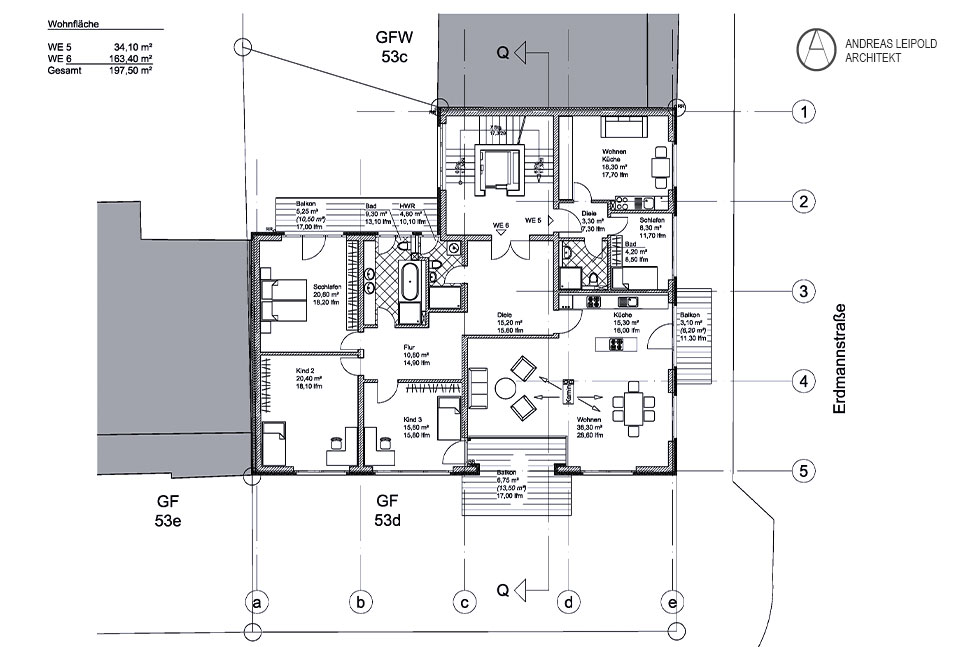
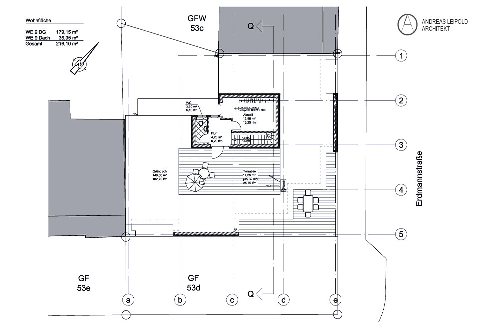
Auch mit einem Raster lässt sich eine anspruchsvolle Eckbebauung beplanen! Die einzige „Überraschung“ bei dem Projekt war, dass nach Konzeption des Eingangs auf die Erdmannstraße, sich der Projekttitel Nonnenstraße änderte. An Wohnungsgrößen stehen eine große Etagenwohnung, eine kleine Zwei-Zimmer und eine große Vier-Zimmer-Wohnung sowie zwei Drei-Zimmer-Wohungen zur Auswahl.











