Bereits das unsanierte Gebäude beinhaltet eine vielfältige Nutzung durch unterschiedliche Alters- und Interessengruppen, sowie durch 2 Wohnungen im Bestand.
Seine zentrale Lage im Stadtgebiet von Trebsen, und die unmittelbare Nähe zur Kirche prädestiniert das Gebäude zur Nutzung als zentralen Ort "der Kultur und Begegnung der Generationen".
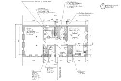
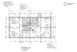
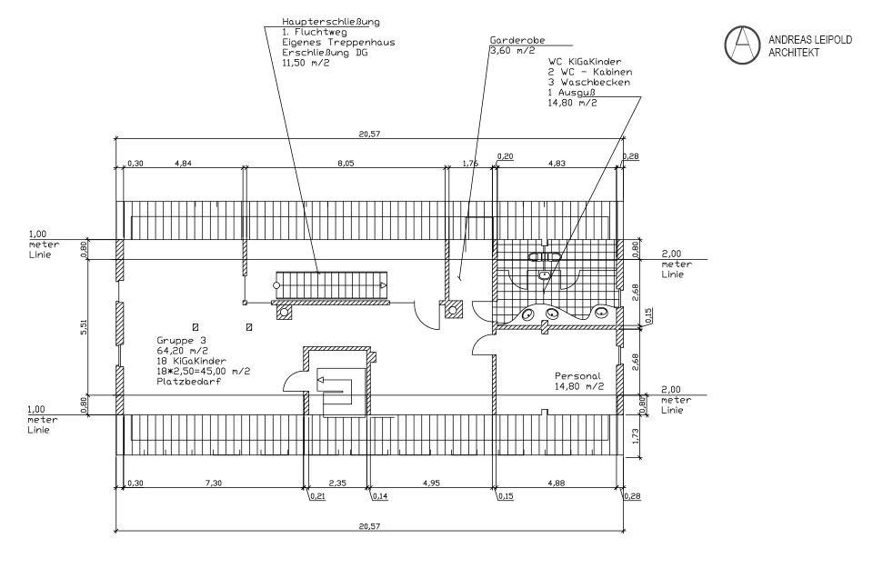
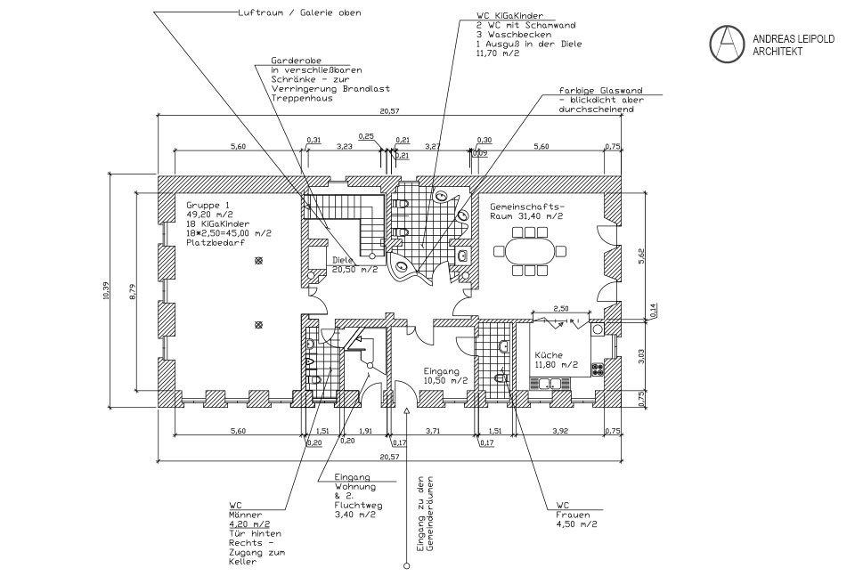
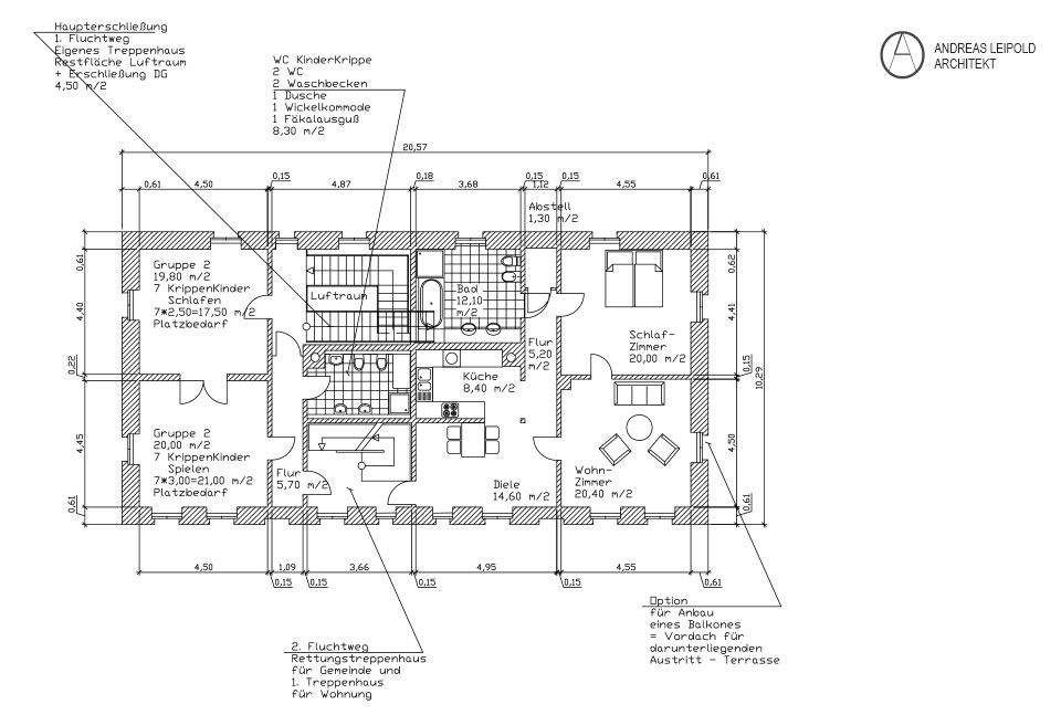
Nach der Sanierung soll zusätzlich eine ganztägige Kinderbetreuung angeboten werden.
Der großzügige Grünbereich um die Kirche herum wird schon seit vielen Jahren nicht mehr als Friedhof genutzt und kann als öffenlicher Park in das Gesamtkonzept einbezogen werden.






