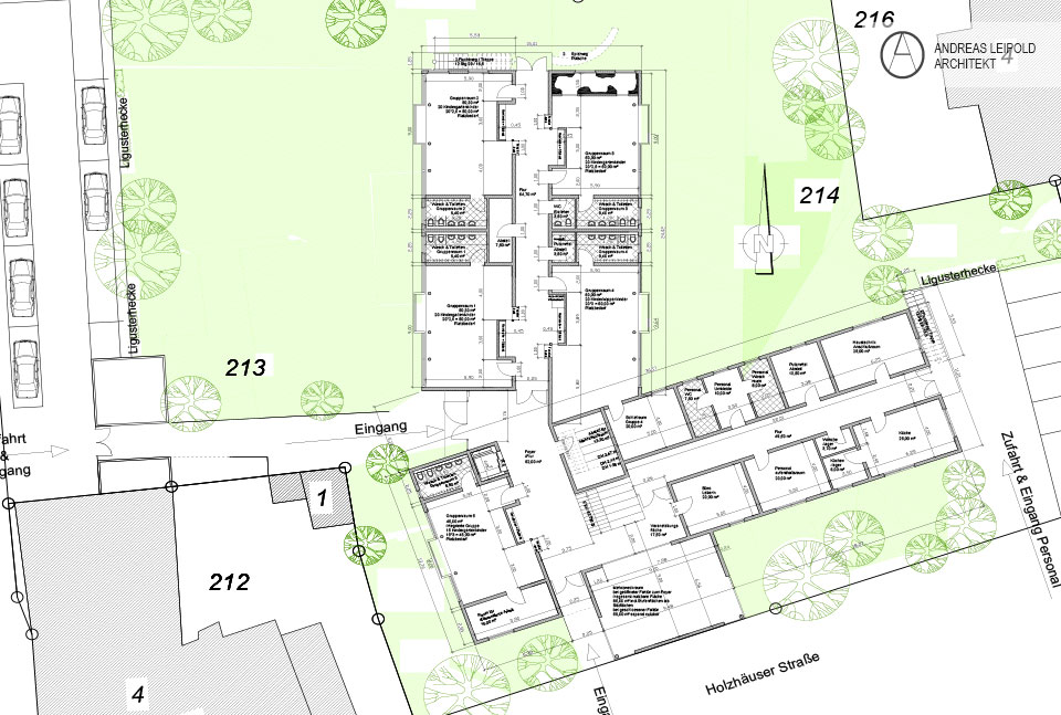
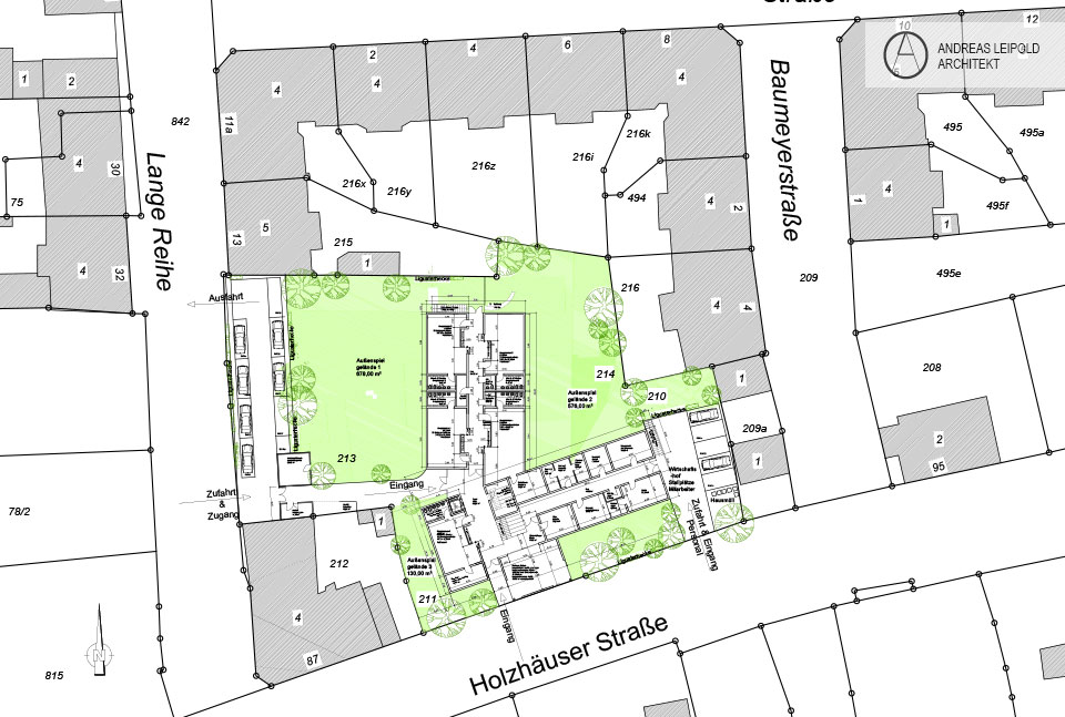
Mit einer Neukonzeption für 170 Kinder auf einem alten Garagenhof im Quartier Holzhäuserstraße/Lange Reihe, soll der zubetonierte Innenhof begrünt und mit Hilfe der Kinder auch belebt werden.
Mit einer Neukonzeption für 170 Kinder auf einem alten Garagenhof im Quartier Holzhäuserstraße/Lange Reihe, soll der zubetonierte Innenhof begrünt und mit Hilfe der Kinder auch belebt werden.