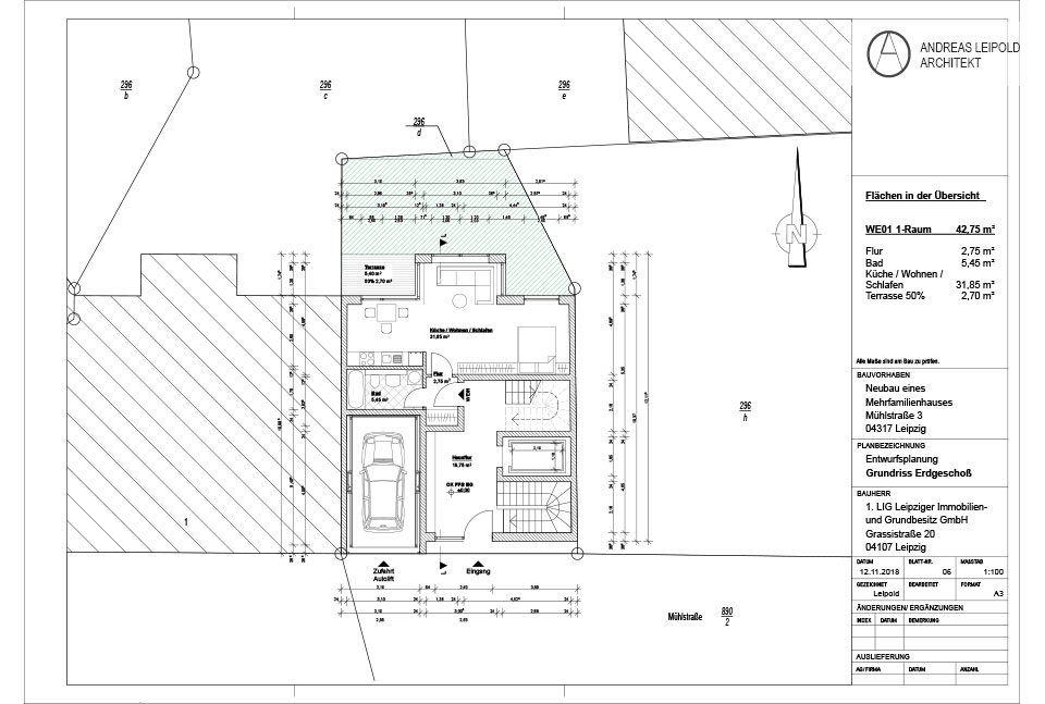
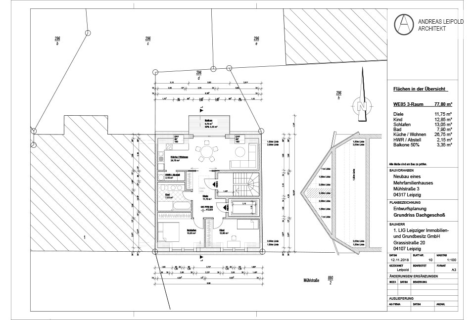
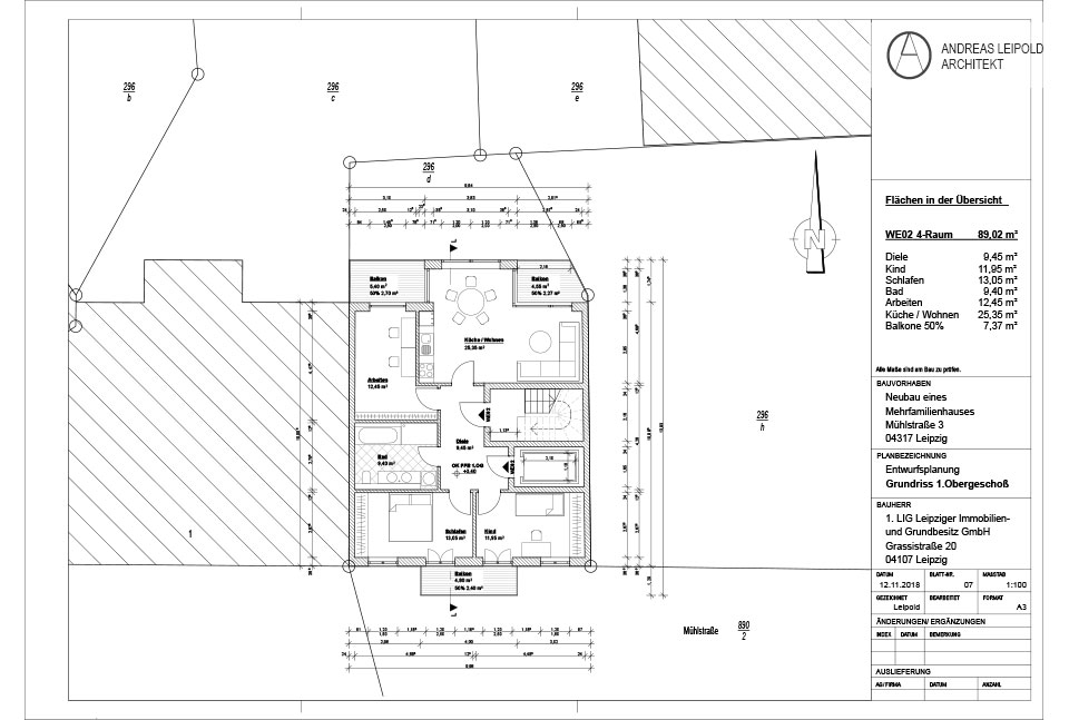
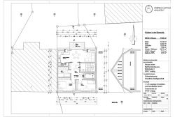
Entwurf eines Mehrfamilienhauses in der Reudnitzer Mühlstraße mit fünf Geschossen und fünf Wohneinheiten.

Zurück