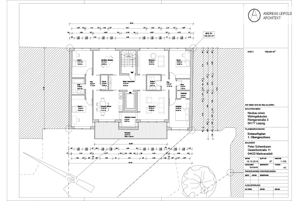
Röntgenstraße

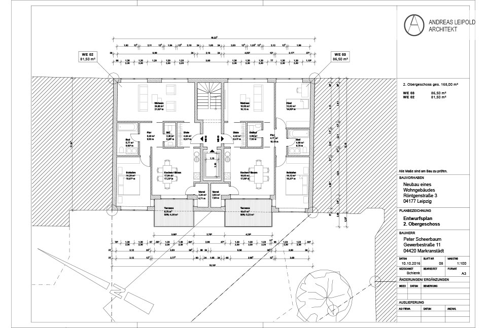
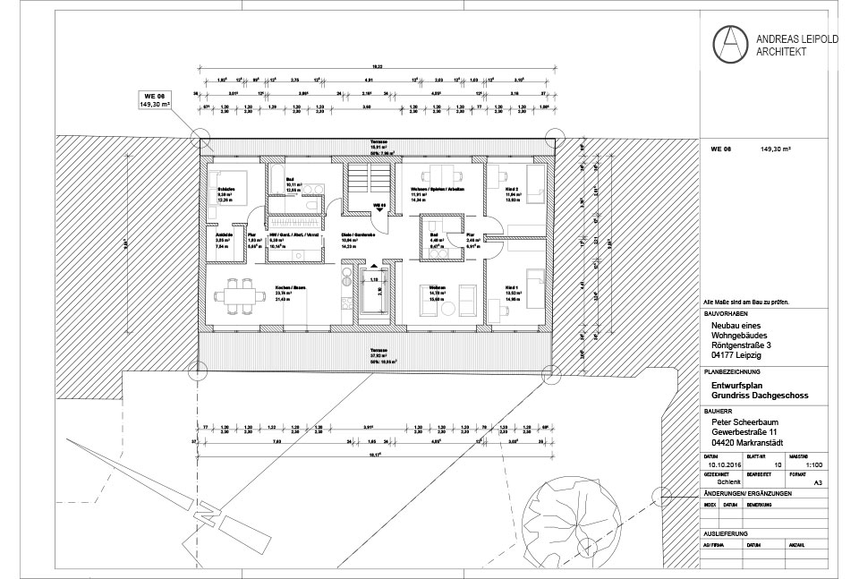
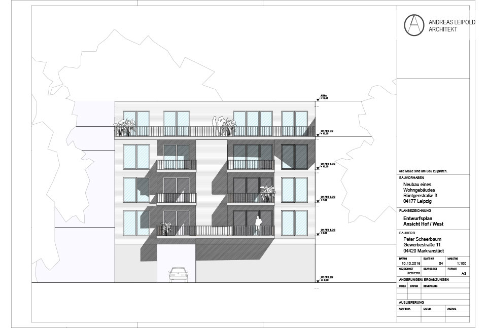
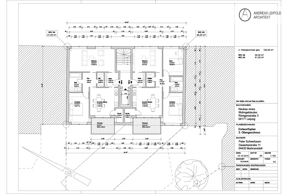
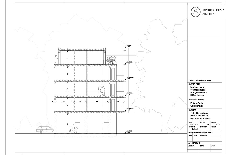
Entwurf eines Mehrfamilienhauses zur Lückenbebauung in Lindenau mit fünf Geschossen und sechs Wohneinheiten.

Zurück