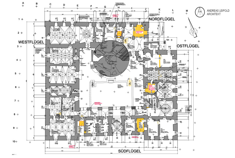
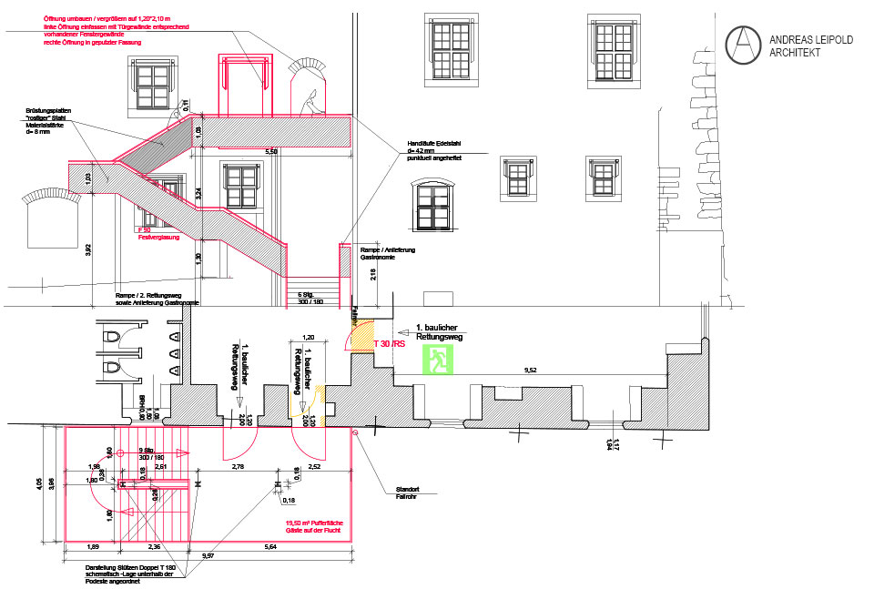
Mit einer konsequenten Neukonzeptionierung für die Nutzung des Schloß Trebsen in der Hand wurde in einem ersten Bauabschnitt das gesamte Erdgeschoß für eine gastronomische Nutzung mit verschiedenen Raumangeboten saniert und umgebaut. Der im zweiten Bauabschnitt geplante Umbau des Obergeschoßes als Hotel und die wieder Innutzungsnahme des Festsaals steht aufgrund der umfangreichen brandschutztechnischen Details allerdings noch in den Sternen.











